Capannone in vendita

Messina, Via conetsse
€ 350.000
2 locali 2 locali
450 Mq 450 Mq
1 bagno 1 bagno

Capannone in vendita

Messina, Via conetsse

Descrizione annuncio

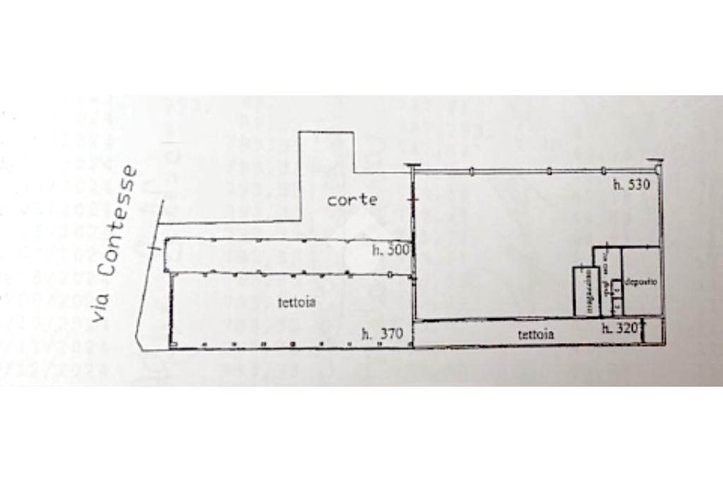
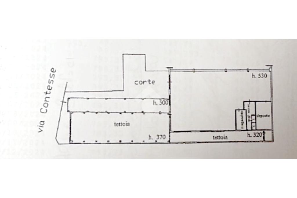
In zona Contesse proponiamo in locazione un ampio capannone industriale di categoria D/1 – opificio, ideale per imprese e attività produttive che necessitano di spazi funzionali e ben collegati. L’immobile, di circa 400 mq, si presta perfettamente a ospitare laboratori artigianali strutturati, attività manifatturiere o logistiche connesse alla produzione, garantendo la piena compatibilità con la destinazione d’uso industriale.

Il capannone è stato oggetto di una ristrutturazione nel 2017 che ha interessato in particolare la copertura, offrendo così un ambiente sicuro, efficiente e pronto all’utilizzo. Uno dei principali punti di forza è rappresentato dall’ampio accesso carrabile, studiato per agevolare l’ingresso anche di mezzi pesanti, caratteristica fondamentale per aziende che richiedono movimentazioni di carico e scarico in totale comodità.

A completare la struttura, è disponibile anche uno spazio esterno che può essere facilmente valorizzato con una tettoia, ideale per lo stoccaggio di merci, materiali e attrezzature, garantendo quindi ulteriore flessibilità operativa a seconda delle esigenze dell’attività.

Dal punto di vista logistico, la posizione si rivela estremamente strategica: lo svincolo autostradale di San Filippo è infatti a breve distanza, garantendo collegamenti rapidi con le principali direttrici di traffico e agevolando sia la distribuzione delle merci che gli spostamenti del personale.

Una soluzione completa, già pronta per accogliere la tua impresa in un contesto funzionale, ben servito e di immediata operatività.

Mostra tutto

Nelle vicinanze

Trasporto pubblico Trasporto pubblico
Contesse
Contesse
220 m
Gazzi
Gazzi
1,3 Km
Bonino
Bonino
1,9 Km
Trasporto pubblico
80 m
Villaggio U.N.R.R.A. (Capolinea)
Villaggio U.N.R.R.A. (Capolinea)
120 m
Ricariche auto elettriche Ricariche auto elettriche
MESSINA Contesse | ENELX
290 m
F 3 Motors Srl | EnelX
1,5 Km
Messina Corbino | EnelX
1,9 Km
Tremestieri SS114 | EnelX
2,0 Km
Messina La Farina | EnelX
2,1 Km
Scuole Scuole
Scuola secondaria di primo grado "Salvo D'Acquisto"
220 m
Scuola primaria "Contesse - UNNRA"
230 m
Scuola primaria "padre Annibale Maria di Francia"
550 m
Scuola secondaria di primo grado "Giacomo Leopardi"
1,0 Km
Scuola Elementare "Policlinico"
1,1 Km
Farmacia Farmacia
Carleo
330 m
Capria
710 m
Germanà
830 m
Gargano
1,2 Km
Gullo
1,2 Km
Ospedali Ospedali
Policlinico Universitario Gaetano Martino
1,4 Km
Supermercati Supermercati
Lidl
410 m
Spaccio Alimentare
420 m
Supermercati
1,8 Km
Simply Market
1,9 Km
Supermercato Fortè
2,0 Km
Negozi Negozi
Mod'è
840 m
Negozi
850 m
Boutique del pane 2
1,0 Km
Conbipel
1,3 Km
Ceraolo
1,5 Km
Bar Bar
Bar Cucè
2,2 Km
Ritrovo Angelo
2,3 Km
Bar
2,4 Km
Ritrovo Maracanà
2,4 Km
Ritrovo Correnti
2,8 Km
Ristoranti Ristoranti
Happy Sushi Wok
450 m
Sale & Pepe
1,0 Km
Pizzeria Rosticceria Spadino
2,9 Km
Mostra tutto

Caratteristiche

Rif.:
61117209
Piano:
Terra di 1
Totale piani:
1
Condizionamento:
Assente
Ascensore:
No
Riscaldamento:
Assente
Mostra tutto
Prezzo Prezzo
€ 350.000
Rata mutuo Rata mutuo
€ 1.618 / mese
Proponi il tuo prezzoProponi il tuo prezzo

Altre caratteristiche

Classe Energetica

G
G
G
G
G
G
G
G
G
EP globale non rinnovabile:
33.83 kW h/m² anno
EP globale rinnovabile:
33.83 kW h/m² anno
Riscaldamento:
Assente

Ti interessa visionare l'immobile?

Fissa un appuntamento  Fissa un appuntamento

Richiedi informazioni

* Questi campi sono obbligatori

Calcola il tuo mutuo

Semplice e senza impegno
Anticipo

( % )
Mutuo

( % )

pochi semplici passi

inserisci i tuoi dati
Questionario completato
Grazie per aver richiesto un appuntamento senza impegno con un nostro Consulente del Credito e Assicurativo.

Hai inserito correttamente tutti i dati necessari e a breve riceverai una e-mail con un link da convalidare per inviare i tuoi dati.
Affiliato
Savoca Simone D.I.
Via San Camillo, 12 98122 Messina (ME)

Il nostro staff


  • Simone Savoca
    Affiliato

  • Arturo Cornacchia
    Collaboratore

  • Barbara Fileti
    Coordinatrice
Via San Camillo, 12 98122 Messina (ME)
Zona: Cavour-Boccetta-Garibaldi
Mostra su mappa
Orari: Dal Lunedi al Venerdì dalle 9.00 alle 13.00 e dalle 15.30 alle 20.00 Il sabato dalle 9.00 alle 13.00
Affiliato
Savoca Simone D.I.
Via San Camillo, 12 98122 Messina (ME)

2025 Tecnocasa Franchising S.p.A. - P. IVA 08365160152 - Via Monte Bianco 60/A 20089 Rozzano (MI). Ogni agenzia ha un proprio titolare ed è autonoma. Privacy policy | Policy utilizzo | Cookie policy