Bilocale in vendita

Messina, Via Santa Marta - Centro
€ 149.000
Prezzo aggiornato
70 Mq 70 Mq
1 bagno 1 bagno

Bilocale in vendita

Messina, Via Santa Marta - Centro

Descrizione annuncio

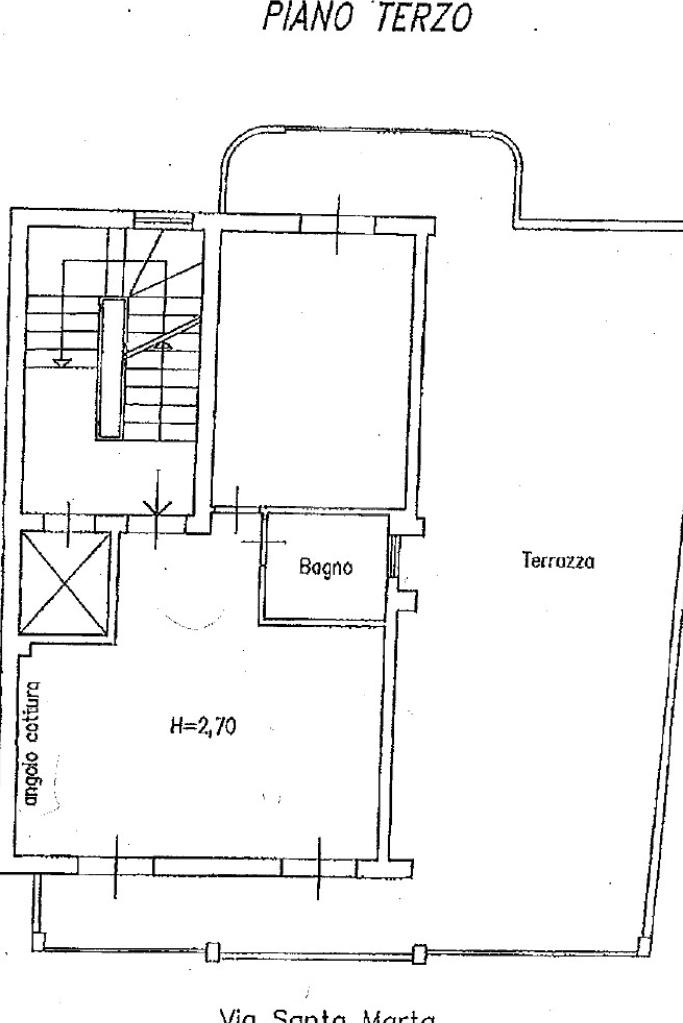
Proponiamo in vendita un elegante bivani situato in Via Santa Marta, nel cuore di Messina, in una posizione centrale che consente di muoversi comodamente a piedi e vivere appieno la città. L’immobile si trova all’interno di un palazzo di nuova costruzione, curato nei dettagli e dotato di tutti i comfort moderni.

L’appartamento si apre su un luminoso ambiente open space che integra perfettamente la zona cucina e il soggiorno, creando uno spazio accogliente e funzionale. La zona notte è composta da una comoda camera da letto, mentre il bagno, moderno e rifinito, completa la disposizione interna.

Punto di forza dell’immobile è l’ampio terrazzo, accessibile dagli ambienti principali, che offre uno sfogo esterno ideale per momenti di relax e convivialità, con affaccio diretto sulla strada principale. Una soluzione perfetta per chi cerca un’abitazione nuova, ben posizionata e pronta da vivere.

Chiama allo 0902408116 per fissare un appuntamento!!!

Mostra tutto

Nelle vicinanze

Trasporto pubblico Trasporto pubblico
stazione di Messina Centrale
stazione di Messina Centrale
1,1 Km
Messina Marittima
Messina Marittima
1,3 Km
Camiciotti
Camiciotti
530 m
Cairoli
Cairoli
620 m
Trasporto pubblico
190 m
Ricariche auto elettriche Ricariche auto elettriche
Messina Masuccio | EnelX
450 m
Messina Zaera | EnelX
520 m
Messina Viale Europa | EnelX
540 m
Messina Cavallotti | EnelX
900 m
Messina Santa Cecilia | EnelX
930 m
Scuole Scuole
Scuola Canonico Annibale Maria di Francia
50 m
Scuola primaria "Tommaso Cannizzaro"
320 m
Scuola secondaria di primo grado "Giacomo Galatti"
330 m
Scuola secondaria di primo grado "Manzoni - Pirandello"
540 m
Scuola primaria "Niccolò Tommaseo"
580 m
Farmacia Farmacia
Farmacia Spirito Santo
210 m
Bruni
240 m
Muratori Galizia
460 m
Cannavò
510 m
Grasso
510 m
Ospedali Ospedali
Azienda Ospedale Piemonte
600 m
COT
640 m
Casa di cura Cristo Re
1,2 Km
Policlinico Universitario Gaetano Martino
2,6 Km
Supermercati Supermercati
ARD
270 m
Lekkerland
280 m
Simply Market SMA
530 m
Tuodí
590 m
Eurospar
710 m
Negozi Negozi
Asian Market
190 m
Nodi & Colletti
200 m
Asian Bazaar
220 m
Asics point
220 m
Il nido
230 m
Bar Bar
Bar Noviziato
100 m
La Perla Nera
230 m
Ritrovo Elisir
330 m
Ritrovo Manara
340 m
Ritrovo Venezia
400 m
Ristoranti Ristoranti
Trattoria del Popolo
160 m
Pizzeria Meri's
180 m
Hostaria da Bacco
200 m
Ristoranti
230 m
Iyad
240 m
Mostra tutto

Caratteristiche

Rif.:
61203058
Piano:
3 di 4 con ascensore (Piano medio)
Balconi:
1
Terrazzi:
1
Camere da letto:
1
Arredamento:
Assente
Mostra tutto
Prezzo Prezzo
€ 149.000
Rata mutuo Rata mutuo
€ 707 / mese
Spese annue Spese annue
€ 500
Proponi il tuo prezzoProponi il tuo prezzo

Classe Energetica

C
C
C
C
C
C
C
C
C
EP globale non rinnovabile:
66.90 kW h/m² anno
EP globale rinnovabile:
66.90 kW h/m² anno
EP invernale del fabbricato:
EP estiva del fabbricato:
Riscaldamento:
Autonomo
Tipo impianto:
A radiatori
Tipo alimentazione:
Metano

Prezzo ridotto di €1 (1%%)

Ti interessa visionare l'immobile?

Fissa un appuntamento  Fissa un appuntamento

Richiedi informazioni

Clicca su Leggi per aprire l'informativa
* Questi campi sono obbligatori

Calcola il tuo mutuo

Semplice e senza impegno
Anticipo

( % )
Mutuo

( % )

pochi semplici passi

inserisci i tuoi dati
Questionario completato
Grazie per aver richiesto un appuntamento senza impegno con un nostro Consulente del Credito e Assicurativo.

Hai inserito correttamente tutti i dati necessari e a breve riceverai una e-mail con un link da convalidare per inviare i tuoi dati.
Affiliato
Savoca Simone D.I.
Via San Camillo, 12 98122 Messina (ME)

Il nostro staff


  • Simone Savoca
    Affiliato

  • Arturo Cornacchia
    Collaboratore

  • Barbara Fileti
    Coordinatrice
Via San Camillo, 12 98122 Messina (ME)
Zona: Cavour-Boccetta-Garibaldi
Mostra su mappa
Orari: Dal Lunedi al Venerdì dalle 9.00 alle 13.00 e dalle 15.30 alle 20.00 Il sabato dalle 9.00 alle 13.00
Affiliato
Savoca Simone D.I.
Via San Camillo, 12 98122 Messina (ME)

2026 Tecnocasa Franchising S.p.A. - P. IVA 08365160152 - Via Monte Bianco 60/A 20089 Rozzano (MI). Ogni agenzia ha un proprio titolare ed è autonoma. Privacy policy | Policy utilizzo | Cookie policy