Quadrilocale in vendita

Messina, Via Adolfo Vetrano - Camaro
€ 57.000
4 locali 4 locali
127 Mq 127 Mq
1 bagno 1 bagno

Quadrilocale in vendita

Messina, Via Adolfo Vetrano - Camaro

Descrizione annuncio

Appartamento in vendita – San Luigi, Messina

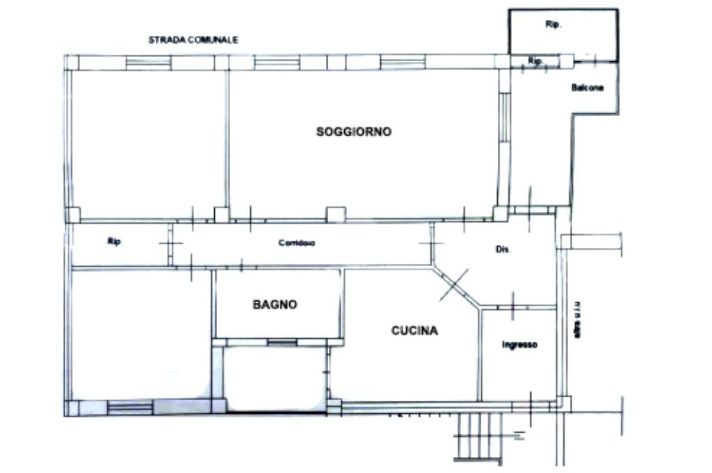
A San Luigi proponiamo in vendita un appartamento di circa 130 m² al terzo piano di una palazzina non dotata di ascensore. La casa è particolarmente adatta a famiglie che hanno bisogno di ambienti ampi e ben distribuiti. L’ingresso si apre su un grande salone doppio, luminoso e accogliente, che può essere facilmente diviso per ricavare un’ulteriore camera. La cucina è abitabile e gli spazi interni includono inoltre due camere da letto, un bagno e due balconi ed un pratico ripostiglio.

L’esposizione su tre lati rende l’immobile molto luminoso durante tutto il giorno. La zona, tranquilla e servita, permette di raggiungere comodamente sia lo svincolo dell’autostrada Messina Centro sia il centro città.

Considerata la metratura e il prezzo contenuto, si tratta di una soluzione ideale per chi cerca spazio e comodità in un contesto urbano ben collegato.

Per maggiori informazioni contattaci allo 0902408116 o al numero WhatsApp 3914092122

Mostra tutto

Nelle vicinanze

Trasporto pubblico Trasporto pubblico
stazione di Messina Centrale
stazione di Messina Centrale
2,2 Km
Messina Marittima
Messina Marittima
2,3 Km
Trieste
Trieste
1,5 Km
Provveditorato / Don Orione
Provveditorato / Don Orione
1,6 Km
Trasporto pubblico
140 m
Ricariche auto elettriche Ricariche auto elettriche
Messina Viale Europa | EnelX
990 m
Messina Zaera | EnelX
1,3 Km
Messina Masuccio | EnelX
1,3 Km
EnelX EVAD Messina Gagini
1,7 Km
Messina Dante | EnelX
1,8 Km
Scuole Scuole
Scuola primaria "Domenico Gentiluomo"
330 m
Scuola primaria di Montepiselli
450 m
Scuola secondaria di primo grado "Giorgio La Pira"
600 m
Scuola primaria "Mario Passamonte"
790 m
Scuole
850 m
Farmacia Farmacia
Latteri
270 m
Farmacia San Paolo
380 m
Crimi
850 m
Muratori Galizia
1,1 Km
Farmacia Spirito Santo
1,2 Km
Ospedali Ospedali
COT
640 m
Azienda Ospedale Piemonte
960 m
Casa di cura Cristo Re
1,4 Km
IRCSS Centro Neurolesi Bonino - Pulejo
2,5 Km
Policlinico Universitario Gaetano Martino
2,6 Km
Supermercati Supermercati
Tuodí
700 m
ARD
1,3 Km
Lekkerland
1,3 Km
Simply Market SMA
1,5 Km
Eurospar
1,8 Km
Negozi Negozi
Super Spaccio Alimentare
1,2 Km
Nodi & Colletti
1,2 Km
Fashion Regina Sposa
1,2 Km
Giò Shopping Center
1,2 Km
Asian Market
1,2 Km
Bar Bar
Bar Noviziato
1,0 Km
La Perla Nera
1,3 Km
Ritrovo Elisir
1,4 Km
Ritrovo Manara
1,4 Km
Ritrovo Venezia
1,4 Km
Ristoranti Ristoranti
Trattoria del Popolo
1,2 Km
Pizzeria Meri's
1,2 Km
Hostaria da Bacco
1,3 Km
Iyad
1,3 Km
Ristoranti
1,3 Km
Mostra tutto

Caratteristiche

Rif.:
61142895
Piano:
3 di 3 (ultimo Piano)
Balconi:
1
Camere da letto:
2
Arredamento:
Assente
Condizionamento:
Assente
Mostra tutto
Prezzo Prezzo
€ 57.000
Rata mutuo Rata mutuo
€ 269 / mese
Spese annue Spese annue
€ 360
Proponi il tuo prezzoProponi il tuo prezzo

Classe Energetica

E
E
E
E
E
E
E
E
E
EP globale non rinnovabile:
125.98 kW h/m² anno
EP globale rinnovabile:
125.98 kW h/m² anno
EP invernale del fabbricato:
EP estiva del fabbricato:
Anno di costruzione:
1950
Riscaldamento:
Autonomo
Tipo impianto:
A radiatori
Tipo alimentazione:
Metano

Ti interessa visionare l'immobile?

Fissa un appuntamento  Fissa un appuntamento

Richiedi informazioni

Clicca su Leggi per aprire l'informativa
* Questi campi sono obbligatori

Calcola il tuo mutuo

Semplice e senza impegno
Anticipo

( % )
Mutuo

( % )

pochi semplici passi

inserisci i tuoi dati
Questionario completato
Grazie per aver richiesto un appuntamento senza impegno con un nostro Consulente del Credito e Assicurativo.

Hai inserito correttamente tutti i dati necessari e a breve riceverai una e-mail con un link da convalidare per inviare i tuoi dati.
Affiliato
Savoca Simone D.I.
Via San Camillo, 12 98122 Messina (ME)

Il nostro staff


  • Simone Savoca
    Affiliato

  • Arturo Cornacchia
    Collaboratore

  • Barbara Fileti
    Coordinatrice
Via San Camillo, 12 98122 Messina (ME)
Zona: Cavour-Boccetta-Garibaldi
Mostra su mappa
Orari: Dal Lunedi al Venerdì dalle 9.00 alle 13.00 e dalle 15.30 alle 20.00 Il sabato dalle 9.00 alle 13.00
Affiliato
Savoca Simone D.I.
Via San Camillo, 12 98122 Messina (ME)

2026 Tecnocasa Franchising S.p.A. - P. IVA 08365160152 - Via Monte Bianco 60/A 20089 Rozzano (MI). Ogni agenzia ha un proprio titolare ed è autonoma. Privacy policy | Policy utilizzo | Cookie policy